Palazzo in vendita a Tarano (RI)

Rif: 9g
Condividi Linkedin Whatsapp Stampa
€ 700.000
Palazzo
500 Mq
6 Vani
Classe energetica A4
4 Bagni
Roma Real Estate Luxury è lieta di proporre in esclusiva la vendita di un prestigioso complesso agrituristico situato nei pressi di Tarano (Rieti), immerso nella cornice autentica e incontaminata della Sabina, tra rigogliosi uliveti e dolci colline.

A soli 15 minuti dall'uscita A1 di Ponzano Soratte e 50 minuti dal centro di Roma, la proprietà si estende su circa 3 ettari di terreno piantumato con ulivi secolari e alberi da frutto, regalando una vista panoramica mozzafiato e un'atmosfera di assoluta quiete.

L'Agriturismo

Di recente costruzione e realizzato secondo i più moderni criteri energetici e costruttivi, il complesso si sviluppa su più livelli, offrendo ambienti ampi, luminosi e perfettamente organizzati per l'attività ricettiva.

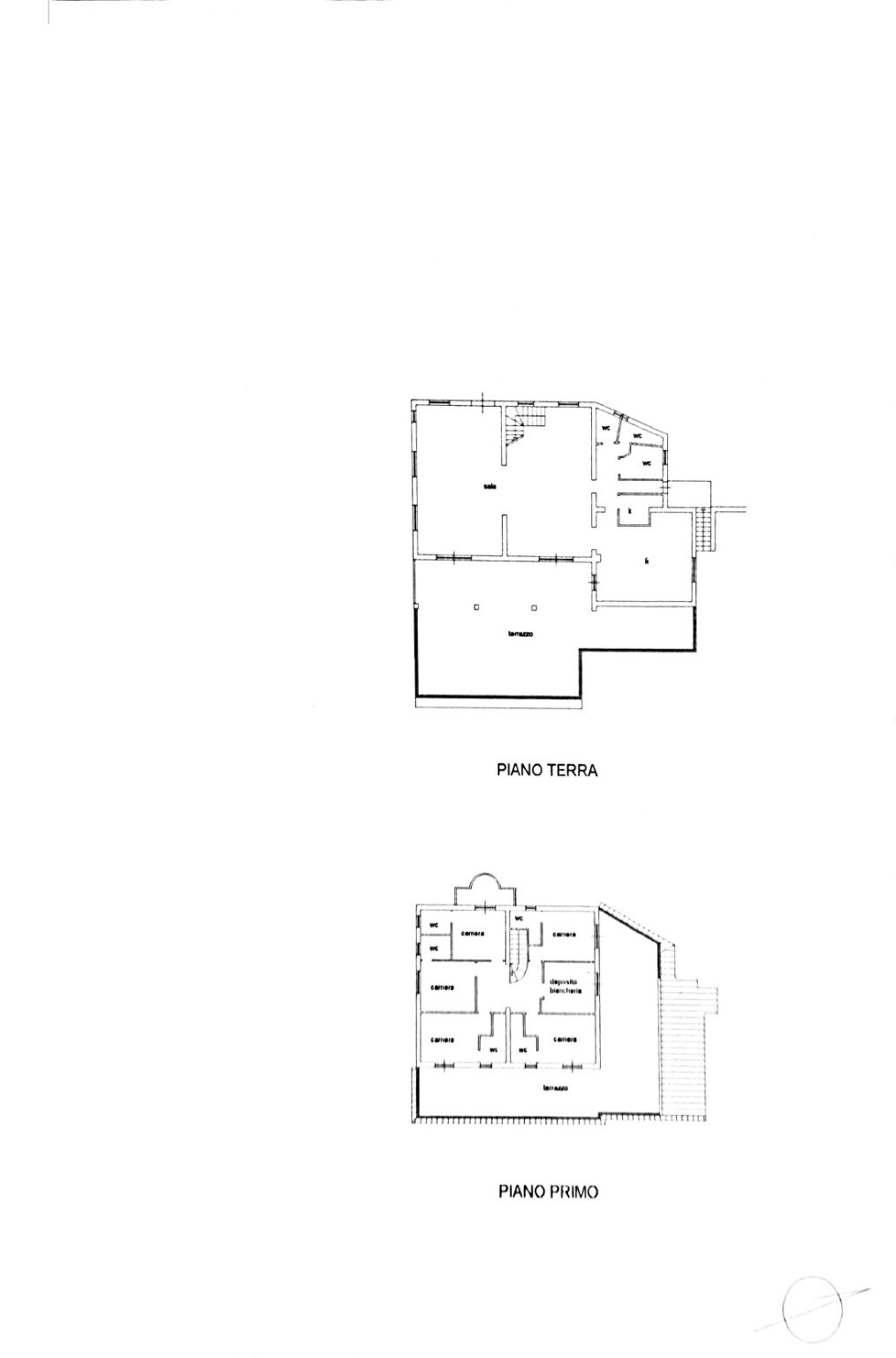
Piano Terra

ampia sala ristorante con zona reception e bar

cucina professionale completamente attrezzata

dispensa

tre bagni

terrazza panoramica con affaccio sulle colline sabine

Piano Primo

cinque camere dotate di bagno privato

una camera di servizio / lavanderia

grande terrazzo perimetrale con vista aperta sulla vallata

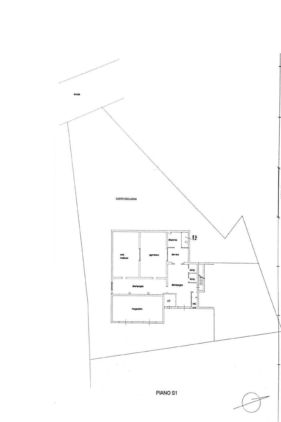
Piano Seminterrato

due sale multifunzionali ideali per convegni, meeting ed eventi privati

spogliatoi

bagni

ampia dispensa con cella frigorifera

magazzino

centrale termica

A completare la proprietà vi sono un ampio parcheggio, comode aree di manovra e una splendida piscina con acqua salata, perfettamente integrata nel paesaggio naturale circostante.

Su richiesta, è inoltre possibile acquistare ulteriori due immobili ampliando così le potenzialità ricettive e residenziali della proprietà.

Nota: le presenti informazioni non costituiscono elementi contrattuali.

Dettaglio immobile

Contratto Vendita
Rif 9g
Prezzo € 700.000
Provincia Rieti
Comune Tarano
Indirizzo Via Benedetti
Superficie 500 mq
Vani 6
Bagni 4
Classe energetica A4 (DL 90/2013)
EPgl,nren 175 kwh/m2 anno
Riscaldamento autonomo
Condizioni ottime condizioni
Anno di costruzione 2015
Ascensore no
Parcheggio si
Balcone si

Video

Planimetrie

Richiedi maggiori informazioni

Autorizzazione al trattamento dei dati personali+
Dichiaro di aver letto l'informativa sulla privacy ed accetto le condizioni d'utilizzo del servizio.
Riempi il campo con il codice riportato nell'immagine*
Codice Captcha
 
FIAIP
Chiamaci Contattaci