Tenuta di Charme con Agriturismo, Villa Padronale e Uliveto

Tarano (Rieti)

Rif: 7G
Condividi Linkedin Whatsapp Stampa
€ 1.500.000
Terratetto
1070 Mq
18 Vani
Giardino
Classe energetica A+
16 Camere
4 Bagni
Garage
Roma Real Estate Luxury è lieta di proporre in esclusiva la vendita di un prestigioso complesso immobiliare agrituristico e residenziale situato nei pressi di Tarano (Rieti), immerso nella cornice naturale e autentica della Sabina, tra rigogliosi uliveti e dolci colline.

A soli 15 minuti dall'uscita A1 di Ponzano Soratte e 50 minuti dal centro di Roma, la proprietà si estende su circa 3 ettari di terreno piantumato con ulivi secolari e alberi da frutto, offrendo una vista panoramica mozzafiato e un contesto di assoluta tranquillità.

Il complesso è composto da tre corpi indipendenti, ciascuno con accesso carrabile autonomo, e include una splendida piscina con acqua salata, perfettamente integrata nel paesaggio circostante.

L'Agriturismo

Di costruzione recente e realizzato secondo i più moderni criteri energetici e costruttivi, l'agriturismo si articola su più livelli:

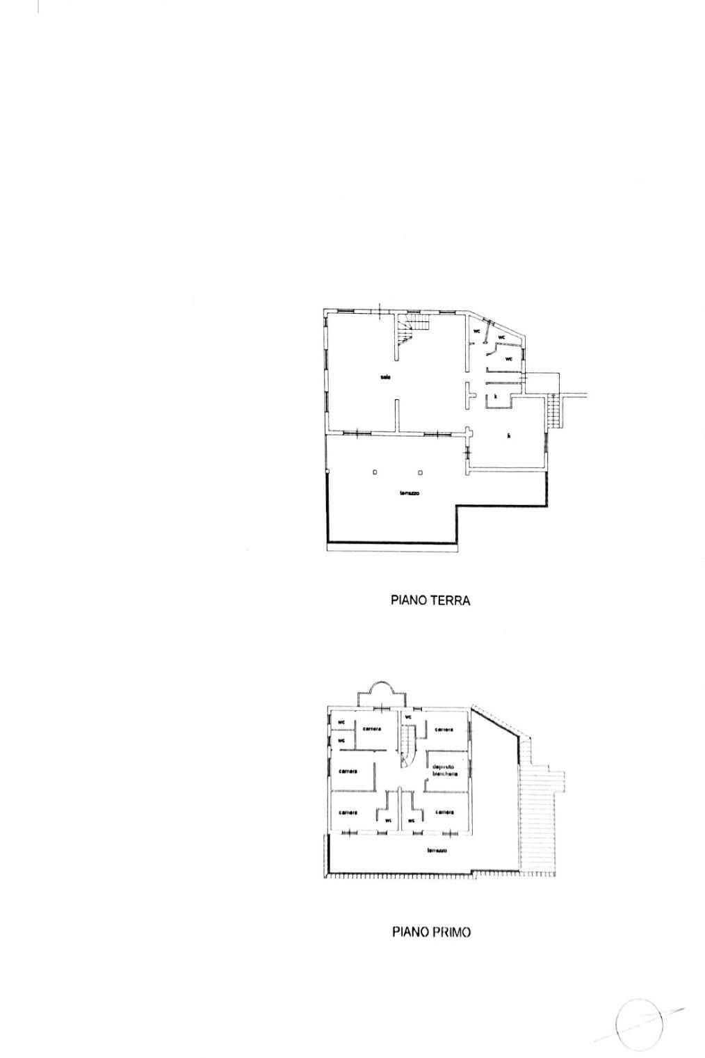
Piano terra: ampia sala ristorante con zona reception e bar, cucina professionale attrezzata, dispensa, tre bagni e terrazza panoramica.

Piano primo: cinque camere con bagno privato, una camera di servizio/lavanderia e un ampio terrazzo perimetrale con vista sulle colline sabine.

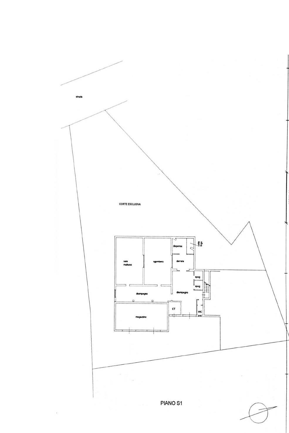
Piano seminterrato: due sale multifunzionali ideali per convegni o eventi privati, spogliatoi, bagni, ampia dispensa con cella frigorifera, magazzino e centrale termica.

Completano la struttura un ampio parcheggio e comode aree di manovra.

Il Secondo Fabbricato

Un edificio indipendente, parzialmente da ristrutturare, composto da due appartamenti al primo piano e due locali al piano terra, circondato da spazio esterno esclusivo, perfetto per ampliare l'attività ricettiva o creare ulteriori unità abitative.

La Villa Padronale

Elegante e imponente, la villa principale vanta circa 600 mq commerciali distribuiti su due livelli:

Piano terra: ampio ingresso, salone con camino, sala da pranzo, cucina abitabile, studio e bagno.

Piano primo: tre camere matrimoniali, una cameretta, tre bagni e balconi panoramici.

All'esterno si trovano una comoda dependance con soggiorno, due camere, cucina e bagno, oltre a due mini appartamenti indipendenti, garage e locali di servizio.

Nota: Possibilità ulteriore cubatura per recupero edilizio.
Possibilità di acquisto separato degli immobili.

Questa tenuta rappresenta una rara opportunità di investimento per chi desidera coniugare ospitalità, residenza e natura, a breve distanza da Roma, nel cuore verde della Sabina.



Le presenti informazioni non costituiscono elemento contrattuale.

Dettaglio immobile

Contratto Vendita
Rif 7G
Prezzo € 1.500.000
Provincia Rieti
Comune Tarano
Indirizzo Via Benedetti 105
Superficie 1070 mq
Vani 18
Camere 16
Bagni 4
Classe energetica A+ (DL 192/2005)
EPI 175 kwh/m2 anno
Riscaldamento autonomo
Condizioni ottime condizioni
Anno di costruzione 2015
Arredato si
Ascensore no
Garage singolo si
Cantina si
Parcheggio si
Giardino
Cucina abitabile
Taverna si
Balcone si
Terrazza si
Mansarda si

Consistenze

Descrizione Superficie Sup. comm.
Principali
Immobile - piano terra 1.070 Mq 1.070 Mqc
Accessorie
Terreno - piano terra 30.000 Mq 600 Mqc
Totale 1.670 Mqc

Video

Planimetrie

Richiedi maggiori informazioni

Autorizzazione al trattamento dei dati personali+
Dichiaro di aver letto l'informativa sulla privacy ed accetto le condizioni d'utilizzo del servizio.
Riempi il campo con il codice riportato nell'immagine*
Codice Captcha
 
FIAIP
Chiamaci Contattaci