Villa plurifamiliare in vendita a Rocca di Papa (RM)

Rif: 1840223m
Condividi Linkedin Whatsapp Stampa
€ 460.000
Villa plurifamiliare
300 Mq
5 Vani
Giardino
Classe energetica D
3 Camere
3 Bagni
Garage
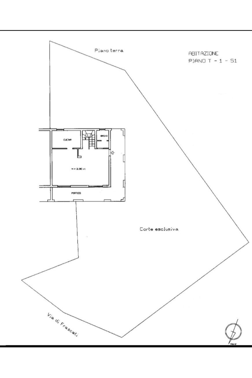
Rocca di Papa – Via di Frascati
In posizione panoramica e riservata, con vista incantevole sui Castelli Romani, proponiamo in vendita una splendida porzione di villa bifamiliare di circa 300 mq, disposta su tre livelli.

La villa offre spazi ampi e luminosi con la possibilità di personalizzare la distribuzione interna o di ricavare due unità abitative indipendenti.

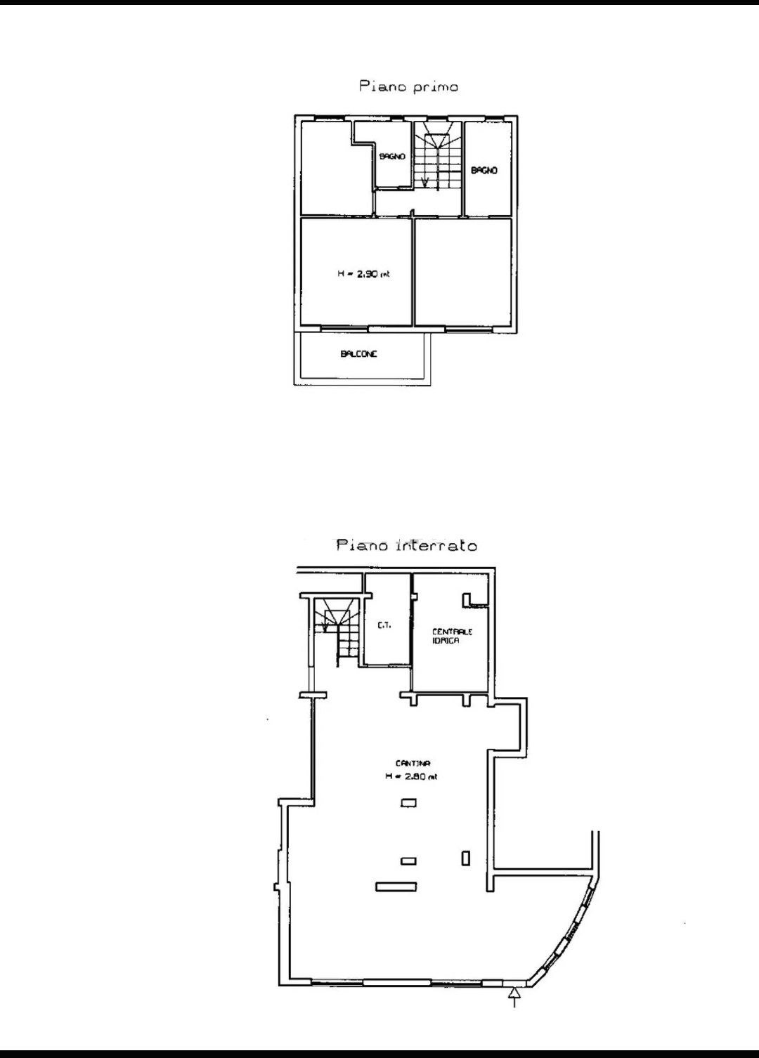
Piano S1: ampia e luminosa taverna con camino,e grandi finestre.
Piano Terra: salone doppio, cucina abitabile, bagno e portico coperto con affaccio sul verde.
Primo Piano (zona notte): tre camere da letto, due bagni e balcone panoramico.

Box auto di circa 50 mq.

Finiture di qualità, pavimenti in parquet e ambienti curati nei dettagli.

All'esterno, una corte privata e un terreno boschivo di circa 1.500 mq completano la proprietà, ideale per chi cerca tranquillità, privacy e contatto con la natura, a pochi minuti dal centro e dai principali servizi.

Le presenti informazioni non costituiscono elemento contrattuale.

Dettaglio immobile

Contratto Vendita
Rif 1840223m
Prezzo € 460.000
Provincia Roma
Comune Rocca di Papa
Indirizzo Via di Frascati
Superficie 300 mq
Vani 5
Camere 3
Bagni 3
Classe energetica D (DL 192/2005)
EPI 175 kwh/m2 anno
Riscaldamento autonomo
Condizioni abitabile
Anno di costruzione 1986
Ascensore no
Garage 50 mq
Giardino
Cucina abitabile
Taverna si
Balcone si
Terrazza si

Consistenze

Descrizione Superficie Sup. comm.
Principali
Immobile - piano terra 300 Mq 300 Mqc
Accessorie
Box/Garage - piano interrato 50 Mq 25 Mqc
Terreno - piano terra 1.500 Mq 150 Mqc
Totale 475 Mqc

Video

Planimetrie

Richiedi maggiori informazioni

Autorizzazione al trattamento dei dati personali+
Dichiaro di aver letto l'informativa sulla privacy ed accetto le condizioni d'utilizzo del servizio.
Riempi il campo con il codice riportato nell'immagine*
Codice Captcha
 
FIAIP
Chiamaci Contattaci