Appartamento in vendita a Roma (RM) zona Città Giardino

Rif: 1840011m
Condividi Linkedin Whatsapp Stampa
€ 635.000
Appartamento
134 Mq
4 Vani
Giardino 100 mq
Classe energetica E
3 Camere
2 Bagni
Ascensore
CITTÀ GIARDINO – VIA MONTE ALTISSIMO

Proponiamo in vendita un elegante appartamento di circa 140 mq con giardino privato di circa 100 mq, situato al piano terra di una palazzina signorile nel cuore di Città Giardino, in una delle vie più tranquille e residenziali del quartiere.

La posizione è strategica: a pochi minuti a piedi dalla fermata della metropolitana B1 “Conca d'Oro”, da Piazza Sempione e dal Parco delle Valli. Un contesto ideale per chi desidera vivere in un ambiente verde e silenzioso, senza rinunciare alla comodità dei servizi e ai collegamenti con il centro città.

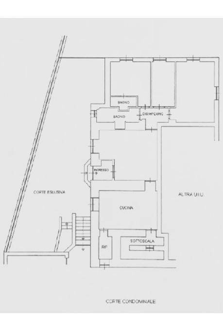
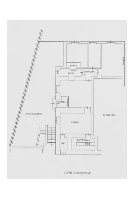
L'immobile, completamente ristrutturato, si sviluppa su un unico livello ed è così composto:

Ingresso

Ampio soggiorno

Disimpegno

Tre camere da letto (di cui due soppalcate)

Cucina abitabile

Ripostiglio

Due bagni

Sottoscala

Spazioso giardino privato, perfetto per momenti di relax e convivialità

Dotato di riscaldamento autonomo e aria condizionata, l'appartamento offre spazi funzionali e ben distribuiti, ideali per famiglie, professionisti o per chi cerca una soluzione confortevole in un contesto verde e prestigioso.

Grazie alla posizione, alle ampie metrature e alla qualità della ristrutturazione, la proprietà rappresenta anche un ottimo investimento, adatta sia all'uso residenziale che ricettivo (affitti a breve o medio termine).

Un'opportunità unica per vivere in uno dei quartieri più affascinanti e storici di Roma, dove charme, tranquillità e comfort si incontrano in perfetta armonia.

Le presenti informazioni hanno valore puramente descrittivo e non costituiscono elemento contrattuale.

Dettaglio immobile

Contratto Vendita
Rif 1840011m
Prezzo € 635.000
Provincia Roma
Comune Roma
Zona Città Giardino
Indirizzo Via Monte Altissimo
Superficie 134 mq
Vani 4
Camere 3
Bagni 2
Classe energetica E (DL 192/2005)
EPI 175 kwh/m2 anno
Riscaldamento autonomo
Condizioni ottime condizioni
Spese condominiali € 100
Anno di costruzione 1950
Ascensore si
Giardino 100 Mq
Cucina abitabile

Consistenze

Descrizione Superficie Sup. comm.
Principali
Immobile - piano terra 134 Mq 134 Mqc
Accessorie
Giardino/Resede 100 Mq 10 Mqc
Totale 144 Mqc

Video

Planimetrie

Richiedi maggiori informazioni

Autorizzazione al trattamento dei dati personali+
Dichiaro di aver letto l'informativa sulla privacy ed accetto le condizioni d'utilizzo del servizio.
Riempi il campo con il codice riportato nell'immagine*
Codice Captcha
 
FIAIP
Chiamaci Contattaci