Appartamento in vendita a Roma (RM) zona Trieste - Coppedè

Rif: 1dm
Condividi Linkedin Whatsapp Stampa
€ 460.000
Appartamento
63 Mq
3 Vani
Classe energetica G
2 Camere
1 bagno
Ascensore
Roma – Via Tolmino | Trilocale con Ampio Terrazzo nel Cuore del Quartiere Trieste

In una delle zone più eleganti e richieste della Capitale, proponiamo in vendita un trilocale completamente ristrutturato con ampio terrazzo, situato in Via Tolmino, nel raffinato quartiere Trieste.

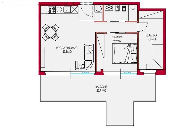
L'immobile si trova al primo piano di una palazzina servita da ascensore, e vanta una superficie commerciale di circa 63 mq, oltre a un terrazzo vivibile di circa 22 mq. La ristrutturazione completa è attualmente in corso e sarà ultimata entro agosto 2025, con l'impiego di materiali e finiture di alta qualità, pensati per offrire eleganza e funzionalità.

Composizione interna:

Ingresso

Soggiorno con angolo cottura

Camera da letto matrimoniale

Cameretta

Bagno moderno ed elegante

Terrazzo di circa 22 mq, ideale per vivere momenti all'aperto in totale privacy

La posizione è particolarmente vantaggiosa: in pochi minuti è possibile raggiungere la facoltà di Giurisprudenza della LUISS e la fermata della Metro B Sant'Agnese/Annibaliano. Il quartiere offre inoltre tutti i principali servizi: scuole, supermercati, farmacie, ristoranti, aree verdi e collegamenti rapidi con il centro città.

Disponibilità di posti auto coperti, acquistabili separatamente al prezzo di Eu. 60.000 ciascuno.

Dettaglio immobile

Contratto Vendita
Rif 1dm
Prezzo € 460.000
Provincia Roma
Comune Roma
Zona Trieste - Coppedè
Indirizzo Via Tolmino
Superficie 63 mq
Vani 3
Camere 2
Bagni 1
Classe energetica G (DL 192/2005)
EPI 175 kwh/m2 anno
Riscaldamento centralizzato
Condizioni ottime condizioni
Spese condominiali € 150
Anno di costruzione 1973
Ascensore si
Cantina si
Cucina angolo cottura
Balcone 23 mq

Consistenze

Descrizione Superficie Sup. comm.
Principali
Immobile - 1° piano 63 Mq 63 Mqc
Accessorie
Balcone - 1° piano 23 Mq 7 Mqc
Totale 70 Mqc

Video

Planimetrie

Richiedi maggiori informazioni

Autorizzazione al trattamento dei dati personali+
Dichiaro di aver letto l'informativa sulla privacy ed accetto le condizioni d'utilizzo del servizio.
Riempi il campo con il codice riportato nell'immagine*
Codice Captcha
 
FIAIP
Chiamaci Contattaci